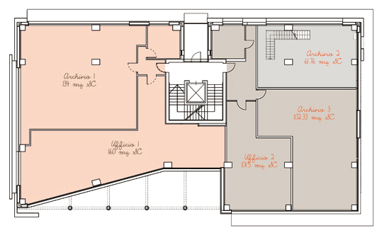
Via Gramsci | Ufficio 2 - Archivio
Immobile ad uso ufficio con annessi archivi
Immobile ad uso ufficio con annessi archivi (rifiniti come l’ufficio). Finiture di ottimo livello, prezzo interessante.
Il Comune di Reggio Emilia
Reggio Emilia, città all'avanguardia e a misura d'uomo. Ai primi posti nelle classifiche sulla qualità della vita, Reggio è una città dei giovani e per i giovani: le scuole dell'infanzia e i nidi sono universalmente riconosciuti per l'approccio pedagogico studiato ed applicato in tutto il mondo. Città in continua crescita economica, grazie ai numerosi settori produttivi, è ai primi posti in Italia per tasso d'occupazione ed export. Presente nel circuito delle Città d'arte, accosta ad antichi monumenti, opere d'arte contemporanea come i ponti di Calatrava, lo Spazio Gerra, le opere di "Invito a" e manifestazioni come Fotografia Europea. Ricca di fermento sociale e culturale.






